Trotse Finse eigenaresse

+20 jaar ervaring

Sauna zelfbouw materialen: wat is echt onmisbaar?

Geschreven door Sanna van Dam

Materiaal

5 november 2025

5–8 minuten

Sauna zelfbouw materialen maken het verschil tussen een eenvoudige houten cabine en een duurzame, comfortabele sauna die jarenlang meegaat. Wie een eigen sauna bouwt, merkt al snel dat de materiaalkeuze bepalend is voor de kwaliteit, het comfort en de levensduur. De juiste sauna materialen vormen de basis voor veiligheid, warmtebehoud en gebruikscomfort. Hoogwaardige keuzes zorgen ervoor dat de sauna efficiënt verwarmt, stabiel blijft en aangenaam aanvoelt bij elk gebruik.

Veel zelf sauna bouwers beginnen met het kiezen van de kachel, maar het zijn juist de sauna materialen: het hout, de isolatie, de damprem en de ventilatie die bepalen hoe goed een sauna werkt. Wanneer deze onderdelen zorgvuldig zijn gekozen en correct worden toegepast, ontstaat een klimaat dat constant blijft en comfortabel aanvoelt, zonder dat de kachel overuren maakt.

Let op (Disclaimer):

Dit artikel is gebaseerd op praktijkervaringen van Sanna, sauna expert bij Topsauna. De informatie dient als algemene richtlijn en is niet bedoeld als persoonlijk of professioneel advies. Iedere situatie en sauna is anders. Gebruik van deze informatie is op eigen risico. Topsauna is niet aansprakelijk voor eventuele gevolgen, noch voor directe of indirecte schade die voortvloeit uit het gebruik of de toepassing van deze inhoud.

Waarom de juiste sauna zelfbouw materialen het verschil maken

In de praktijk ziet Sanna dat veel zelf sauna bouwers standaard bouwmaterialen gebruiken, omdat ze denken dat elk hout geschikt is. In werkelijkheid stelt een sauna extreme eisen aan warmte- en vochtbestendigheid. Slecht gekozen sauna materialen kunnen kromtrekken, hars afgeven of zelfs schade veroorzaken aan de constructie.

Een goed voorbeeld is grenen- of vurenhout. Deze houtsoorten bevatten hars, die bij hoge temperatuur smelt en lekt. Hierdoor ontstaan vlekken en een onaangename geur. Bovendien kunnen de wanden vervormen door vocht en hitte. Harsvrije houtsoorten zoals abachi, espen of elzen blijven daarentegen koel en stabiel, en worden daarom gezien als de beste sauna zelfbouw materialen voor wandbekleding en banken.

Ook de rest van de wandopbouw bepaalt het comfort. De isolatie en dampremfolie moeten bestand zijn tegen hoge temperaturen en vocht. Gebruik altijd glaswol of steenwol in combinatie met aluminiumfolie die speciaal is ontworpen voor sauna’s. Gewone bouwfolie smelt of laat damp door. Met deze sauna zelfbouw materialen blijft de temperatuur stabiel, droogt de cabine sneller en gaat de constructie langer mee.

Lees meer over de juiste wandopbouw in het kennisartikel Sauna isolatie.

Binnenhout en banken – de basis van prettige sauna zelfbouw materialen

Het binnenhout bepaalt niet alleen de uitstraling, maar vooral het comfort. Kwalitatief sauna hout voelt prettig aan, blijft koel bij hoge temperaturen en neemt weinig vocht op. De meest gebruikte houtsoort voor saunawanden en plafonds is Noordische Fichte. Wie liever harsvrij hout wil, kiest beter voor Espen of Elzen. Deze houtsoorten zijn stabiel en goed bestand tegen hoge temperaturen, wat ze geschikt maakt voor langdurig gebruik in de sauna.

Voor banken gebruikt Sanna bij voorkeur Abachi. Deze houtsoort is licht, zacht en splintervrij, en blijft koel aanvoelen, zelfs bij temperaturen boven de 100 graden. Bovendien heeft Abachi een prettige, huidvriendelijke textuur, wat het ideaal maakt voor comfortabel zit- en liggebruik in de sauna. Espen heeft vergelijkbare eigenschappen, maar oogt strakker en moderner. Elzen geeft de cabine een warme, natuurlijke kleur. Deze houtsoorten behoren tot de belangrijkste onderdelen voor sauna zelfbouw.

Naast losse banklatten kunt u ook kiezen voor kant-en-klare saunabanken in standaardmaten: 160×60, 210×60, 240×60, 210×40, 160×40, 240×40 of het compacte model Vlinder 60×80.

Een correcte bankopbouw vergroot het comfort. Een zitbank is ongeveer zestig centimeter diep, een ligbank 120 centimeter. Het hoogteverschil tussen de banken bedraagt gemiddeld vijftig centimeter, zodat de warmte gelijkmatig circuleert.

De banken worden afgerond en zorgvuldig geschuurd om splinters te voorkomen. Voor extra bescherming kan een dunne laag hittebestendige saunawax worden aangebracht.

Meer informatie over geschikte houtsoorten en banken vind je bij welke hout voor de sauna

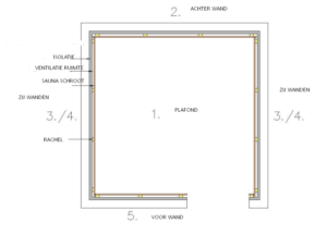
Wandopbouw en isolatie – laag voor laag met duurzame sauna materialen

Een goede wandopbouw voorkomt warmteverlies en vochtproblemen. De beproefde Finse methode bestaat uit vier lagen:

  1. Binnenbekleding: houten schroten van Espen, Elzen of Hemlock

  2. Dampremfolie: aluminiumfolie die vocht tegenhoudt en warmte reflecteert

  3. Isolatie: glaswol of steenwol van circa 60 mm dik

  4. Buitenwand: houten of constructieve bekleding

De aluminiumfolie is een van de belangrijkste sauna zelfbouw materialen, omdat die voorkomt dat vocht in de isolatie trekt. Gebruik uitsluitend folie van saunakwaliteit en plak naden zorgvuldig af met aluminiumtape. Kleine openingen kunnen het effect van de isolatie sterk verminderen. Gebruik geen standaard dampfolie of schuimproducten – deze kunnen smelten bij hoge temperatuur.

Bij Topsauna zijn hoogwaardige bouwmaterialen verkrijgbaar, zoals aluminiumfolie voor sauna bouw en aluminiumtape. Deze producten zijn onmisbare onderdelen in elke lijst van sauna zelfbouw materialen.

Lees meer over wandopbouw en folies in het artikel Zelf saunawand bouwen.

Ventilatie en techniek

Ventilatie bepaalt hoe comfortabel de sauna aanvoelt. Zonder voldoende luchtstroming ontstaat een drukkend klimaat en raakt de lucht snel verzadigd met vocht. De juiste sauna materialen voor ventilatie zorgen voor een constante toevoer van verse lucht.

In de praktijk plaatst Sanna de luchtinlaat onder de kachel en de uitlaat tegenover de kachel, net onder het plafond. Daardoor ontstaat een natuurlijke luchtcirculatie. Deze doorstroming zorgt ervoor dat de warmte gelijkmatig wordt verdeeld en dat banken na gebruik sneller drogen.

Ventilatie hangt samen met het kachelvermogen. Een kleine binnensauna kan vaak volstaan met een elektrische kachel van 230 volt, terwijl grotere cabines krachtstroom van 400 volt vereisen.

Bij Topsauna vind je veilige en betrouwbare saunakachels, waaronder de Harvia en Sawo saunakachel en verdere elektrische saunakachels. Meer informatie vind je in het artikel Sauna ventilatie.

Buitenafwerking en plaatsing: materialen voor binnen en buiten

De buitenafwerking bepaalt de duurzaamheid van de sauna. Een binnensauna kan worden afgewerkt met hout of gips, zolang de binnenzijde dampdicht is. Een buitensauna vraagt echter om andere sauna materialen, zoals thermisch behandeld hout of geïmpregneerde panelen.

Thermohout is bestand tegen weersinvloeden en vervormt nauwelijks. Elzenhout heeft een warme uitstraling en past goed bij natuurlijke omgevingen. Voor buitenopstellingen adviseert Sanna altijd een afdak of overstek: dat voorkomt inwatering en verlengt de levensduur.

Wie inspiratie zoekt voor buitenmodellen kan kijken naar de barrelsauna of het kennisartikel Indeling sauna.

Materialenlijst – alle materialen op een rij

Zelf sauna bouwers die efficiënt willen werken, beginnen met een duidelijke lijst van sauna zelfbouw materialen. De belangrijkste categorieën zijn:

  • Binnenhout en afwerking
    Gebruik saunaprofilering van Abachi, Espen, Elzen of Hemlock. Deze houtsoorten vormen de basis van elke duurzame sauna. Bescherm het hout eventueel met een hittebestendige saunawax.
  • Constructie en bevestiging
    Gebruik droog, recht regelwerk en bevestig met RVS-schroeven of montageclips. Vermijd standaard staal dat kan corroderen. Benodigde bevestigingsmaterialen vind je bij zelfbouw sauna.
  • Isolatie en damprem
    Plaats glaswol of steenwol met een dikte van 60 mm en werk af met aluminiumfolie en tape. Deze sauna materialen zijn verkrijgbaar bij gespecialiseerde bouwleveranciers.
  • Ventilatie en techniek
    Monteer ventilatieroosters bij de kachel en tegenover het plafond. Gebruik hittebestendige kabels, armaturen en kachels van betrouwbare kwaliteit.
  • Deuren en glas
    Gebruik veiligheidsglas met houten handgrepen en een ventilatiespleet onderaan de deur. Kies uit verschillende breedtes en glastinten.

Conclusie

Een goed gebouwde sauna begint met de juiste sauna zelfbouw materialen. Hoogwaardige houtsoorten, betrouwbare isolatie en correcte ventilatie zorgen voor comfort, veiligheid en energie-efficiëntie. Door te kiezen voor duurzame sauna materialen bouwt iedere zelf sauna bouwer een cabine die jarenlang meegaat en eenvoudig te onderhouden is.

Bekijk alle bouwonderdelen en materialen bij de kachel of bekijk de verschillende houtsoorten.

 

Veelgestelde vragen

Wat zijn de beste sauna zelfbouw materialen voor wanden en banken

Noordisch Fichte is de meest gebruikte houtsoort voor sauna wanden. Het is stabiel en geschikt voor hoge temperaturen. Ook Hemlock, Espen en Elzen worden veel toegepast vanwege hun rustige uitstraling. Voor banken zijn Abachi en Espen ideaal, omdat deze houtsoorten koel aanvoelen, weinig splinteren en comfortabel zijn in gebruik.

Welke isolatie gebruik je in een sauna

Gebruik glaswol of steenwol als isolatie. Deze materialen zijn bestand tegen hoge temperaturen. Kunststof isolatie is ongeschikt, omdat dit kan vervormen of smelten door de hitte in de sauna.

Hoe dik moet de sauna wand zijn

Een sauna wand is gemiddeld ongeveer tien centimeter dik. Dit is inclusief isolatie en dampfolie. De exacte dikte kan variëren afhankelijk van de situatie, zoals een binnen of buitensauna.

Welke saunadeur past in mijn ontwerp

Saunadeuren zijn verkrijgbaar in verschillende breedtes, zoals 60, 70 of 80 centimeter. Je kunt kiezen uit helder, grijs of bronskleurig glas. Ook het kozijn is aanpasbaar, bijvoorbeeld in Espen of Elzenkleur. Voor een meer gesloten of klassieke uitstraling is een volledig houten saunadeur ook mogelijk.

Welke folie hoort bij sauna zelfbouw materialen

Gebruik altijd aluminiumfolie die geschikt is voor sauna’s. Deze folie moet zorgvuldig worden afgeplakt met hittebestendige aluminiumtape om de constructie volledig dampdicht te maken.

Wat is een sauna beschermingsmiddel

Een sauna beschermingsmiddel is een speciale olie of wax die het hout beschermt tegen vocht, vuil en zweetvlekken. Het tast de ademende werking en hittebestendigheid van het hout niet aan. Hierdoor blijft het saunahout langer mooi en hygiënisch en wordt de levensduur verlengd.

Welke fout maken zelf sauna bouwers vaak

Een veelgemaakte fout is het ontbreken van een dampdichte laag, wat kan leiden tot vochtproblemen en warmteverlies. Ook worden soms standaard bouwmaterialen gebruikt die niet geschikt zijn voor sauna temperaturen. Daarnaast worden banken regelmatig te laag geplaatst, waardoor je minder van de opstijgende warmte ervaart. Slechte of ontbrekende ventilatie komt ook vaak voor, terwijl dit juist essentieel is voor comfort.

Hoe onderhoud je sauna materialen

Maak het hout regelmatig schoon met een zachte borstel en gebruik geen agressieve schoonmaakmiddelen. Laat de sauna na gebruik goed drogen door de ventilatieroosters en de sauna deur open te zetten.

Over de auteur

Sanna is geboren en getogen in Finland, waar de sauna een vast onderdeel is van het dagelijks leven. Met meer dan 20 jaar ervaring in houtkeuze, warmteverdeling en kacheltechniek helpt zij klanten in Nederland en België bij het maken van de juiste keuzes. Haar advies is nuchter, praktisch en geworteld in authentieke Finse saunatradities.